
Restorasyon
Adatepe Rekonstrüksiyon Projesi
Eski Eser Tescilli Konut Yapısı
Konum
adatepe,ayvacık
Tarih
Ağustos 2024
Alan
75 m²
İşveren
Özel
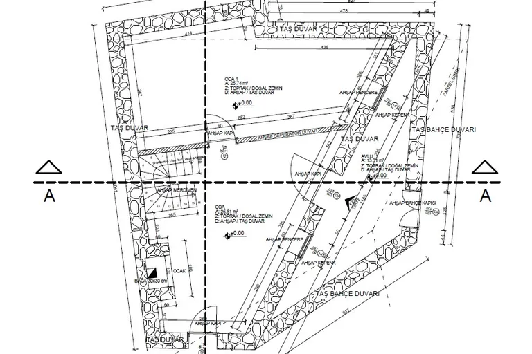
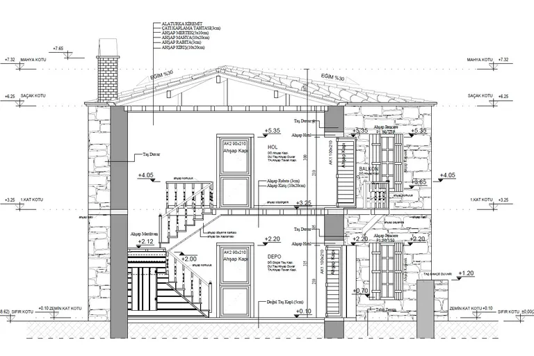
Tescilli Eski Eser Konut Yapısı
Rölöve ,Restitüsyon Ve Restorasyon Projeleri çizilmiştir.
Yapı zamanla tamamen yıkılmış ancak eski duvar izleri durmaktadır.
Mevcuttaki yenilenmiş yapıların analizi ve eski çevre yapıların analizi yapılarak
Proje Görselleri
Gelecek projeniz için buradayız
Hayalinizdeki mimari projeyi birlikte gerçekleştirelim.
